Nuthall, Nottingham

Under Offer
£404,995

4 2 1

The Bradgate is a spacious four-bedroom detached family home. The ground floor welcomes you with a hallway leading to a front-facing lounge, an open-plan kitchen and dining area, a WC, and ample storage space. The kitchen and dining area feature French doors that open to the rear garden, seamlessly blending indoor and outdoor living. On the first floor, you’ll find four generously sized bedrooms and a large family bathroom. The primary bedroom offers plenty of space and includes a private ensuite, providing a comfortable and luxurious retreat. Call our Kimberley Team to book a viewing 01559385577 Option 1. 

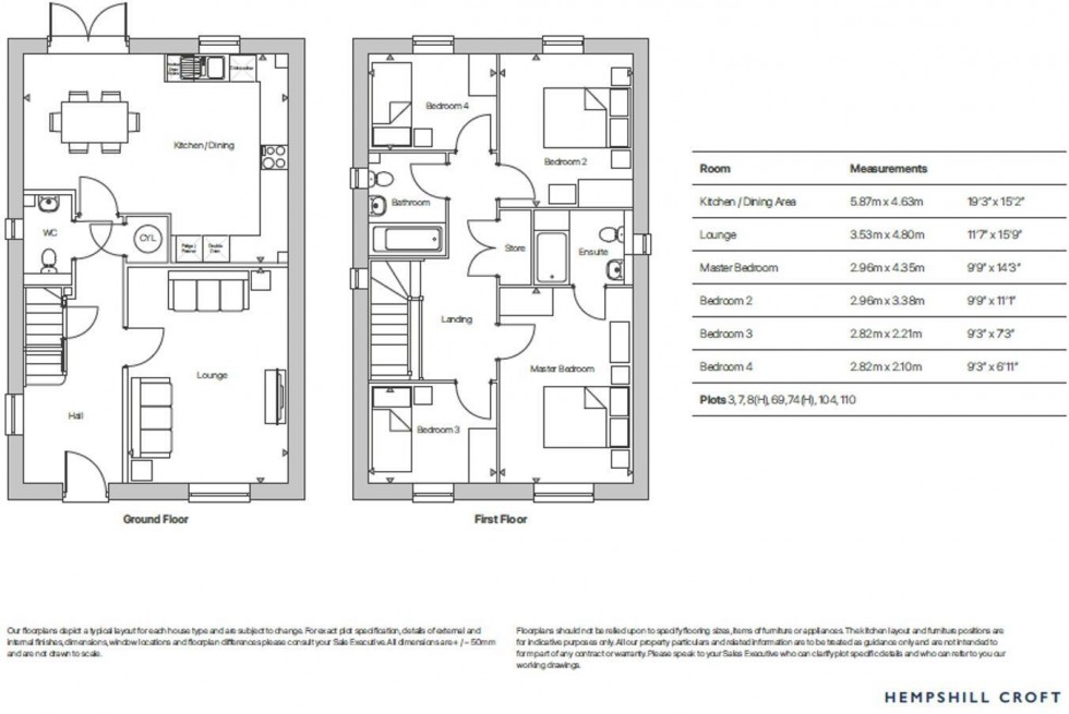
Ground Floor

Storm Porch

Composite door to the entrance hall.

Entrance Hall

Stairs to the first floor, doors to the understairs storage cupboard, WC, lounge, dining kitchen and storage cupboard housing the hot water tank.

WC

WC, pedestal sink unit and obscured uPVC double glazed window to the side.

Lounge

4.8m x 3.53m (15' 9" x 11' 7") UPVC double glazed window to the front and radiator.

Dining Kitchen

5.87m x 4.63m (19' 3" x 15' 2") A range of matching wall & base units, work surfaces incorporating an inset sink & drainer unit. Integrated appliances. Radiator, ceiling spotlights. UPVC double glazed window to the rear and French doors leading to the rear garden.

First Floor

Landing

Doors to all bedrooms and bathroom. Door to the storage cupboard. Access to the attic.

Primary Bedroom

4.35m x 2.96m (14' 3" x 9' 9") UPVC double glazed window to the front, radiator and door to the en suite.

En Suite

3 piece suite in white comprising WC, pedestal sink unit and shower cubicle. Extractor fan, heated towel rail and obscured uPVC double glazed window to the side.

Bedroom 2

3.38m x 2.96m (11' 1" x 9' 9") UPVC double glazed window to the rear and radiator.

Bedroom 3

2.82m x 2.21m (9' 3" x 7' 3") UPVC double glazed window to the front and radiator.

Bedroom 4

2.82m x 2.10m (9' 3" x 6' 11") UPVC double glazed window to the rear and radiator.

Bathroom

3 piece suite in white comprising WC, pedestal sink unit and bath with shower over. Heated towel rail, extractor fan and obscured uPVC double glazed window to the side.

Outside

To the front of the property is a turfed lawn. A driveway provides ample off road parking leading to the detached garage with up & over door and power. The rear garden comprises a paved patio seating area, turfed lawn and is enclosed by timber fencing to the perimeter with gated access to the side.

  • The Bradgate
  • Brand New Detached Home
  • 4 Bedrooms
  • Lounge
  • Open Plan Dining Kitchen
  • Downstairs WC
  • En Suite Shower Room
  • Driveway & Single Garage
  • 10 Year Warranty
  • Energy Efficient Homes with Air Source Heat Pump
  • 1228 Square Feet
Floorplan for Nuthall, Nottingham
Similar Properties

Get a FREE valuation

Find out how much your property is worth