Nuthall, Nottingham

For Sale
£369,995

4 1 1

The Melbourne is a stunning four-bedroom home. Downstairs features a full-length lounge with a bay window and an open-plan kitchen dining space with French doors to the rear garden as well as a useful utility space and and WC. The first floor includes four ample sized bedrooms and a well-appointed family bathroom. Outside a driveway provides ample off road parking leading to the detached garage. Call our Kimberley Team to book a viewing 01159385577 Option 1.

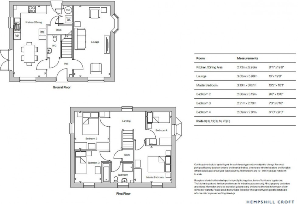
Ground Floor

Storm Porch

Door to the entrance hall.

Entrance Hall

Stairs to the first floor and doors to the lounge, dining kitchen and WC.

WC

WC, pedestal sink unit and heated towel rail.

Lounge

5.98m x 3.05m (19' 7" x 10' 0") UPVC double glazed window to the front, uPVC double glazed bay window to the side and radiator.

Dining Kitchen

5.98m x 2.73m (19' 7" x 8' 11") A range of matching wall & base units, work surfaces incorporating a sink & drainer unit. Integrated appliances. French doors leading to the garden, doo to the rear leading to the garden, door to the storage cupboard housing the hot water tank and door to the storage cupboard offering useful storage space. UPVC double glazed windows to the side and front.

First Floor

Landing

UPVC double glazed window to the rear and doors to all bedrooms and bathroom. Door to the storage cupboard and access to the attic.

Primary Bedroom

3.10m x 3.07m (10' 2" x 10' 1") UPVC double glazed window to the front and radiator.

Bedroom 2

3.19m x 2.88m (10' 6" x 9' 5") UPVC double glazed window to the side and radiator.

Bedroom 3

2.7m x 2.21m (8' 10" x 7' 3") UPVC double glazed window to the front and radiator.

Bedroom 4

2.81m x 2.09m (9' 3" x 6' 10") UPVC double glazed window to the side and radiator.

Bathroom

4 piece suite in white comprising WC, pedestal sink unit, bath and shower cubicle. Extractor fan, chrome heated towel rail and obscured uPVC double glazed window to the front.

Outside

To the front of the property a driveway provides off road parking leading to the detached garage with up & over door and power.

  • The Melbourne
  • Brand New Detached Home
  • 4 Bedrooms
  • Open Plan Dining Kitchen
  • Lounge
  • Downstairs WC
  • Driveway & Garage
  • 10 Year Warranty
  • Energy Efficient Homes with Air Source Heat Pump
  • 1066 Square Feet
Floorplan for Nuthall, Nottingham
Similar Properties

Get a FREE valuation

Find out how much your property is worth