Nuthall, Nottingham

Under Offer
£344,995

3 2 1

Step into this inviting three-bedroom home, where a dual-aspect lounge featuring a charming bay window awaits. The open-plan kitchen and dining area boasts French doors that open onto the garden, complemented by a convenient storage cupboard and a practical utility room with outside access. The impressive primary bedroom spans the full depth of the house, offering ample space and a luxurious ensuite, creating a private sanctuary. Two additional spacious bedrooms are accessible from the central landing, along with a well-appointed family bathroom, ensuring comfort and functionality throughout this home. Outside a driveway provides off road parking leading to the single garage. Call our Kimberley Team to book a viewing 01159385577 Option 1.

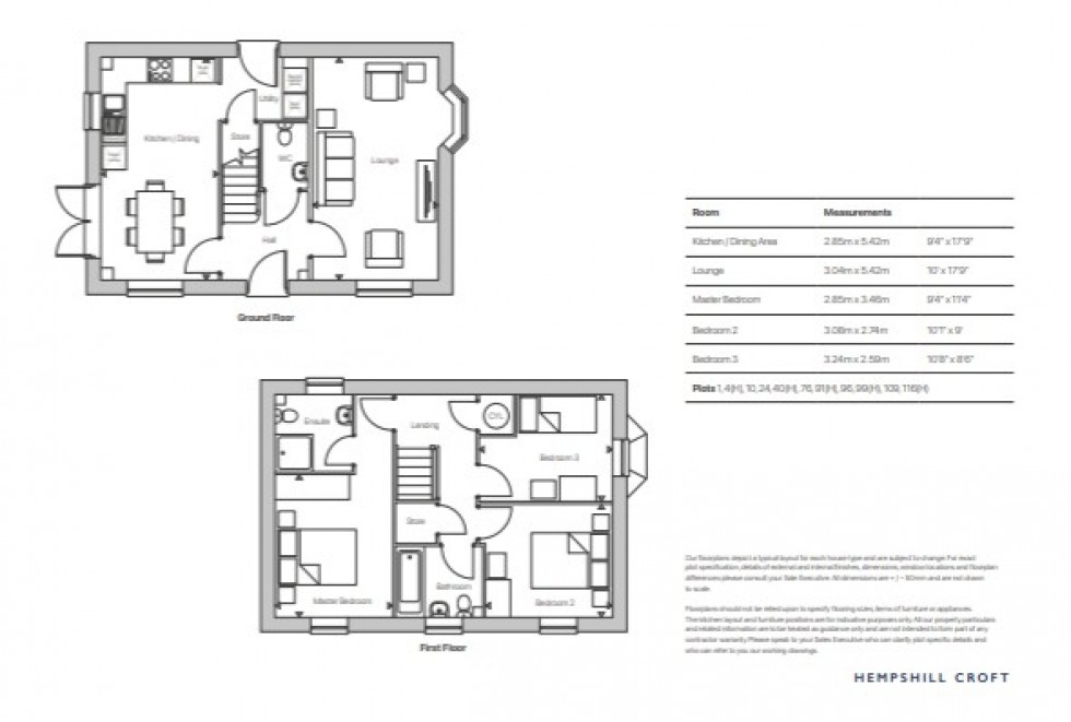
Ground Floor

Storm Porch

Composite door to the entrance hall.

Entrance Hall

Stairs to the first and doors to the lounge, dining kitchen and WC.

WC

WC, pedestal sink unit and obscured uPVC double glazed window to the side.

Lounge

5.42m x 3.04m (17' 9" x 10' 0") UPVC double glazed window to the front, uPVC double glazed bay window to the side and radiator.

Dining Kitchen

5.42m x 2.85m (17' 9" x 9' 4") A range of matching wall & base units, work surfaces incorporating an inset sink & drainer unit. Integrated appliances. UPVC double glazed window to the front and French doors to the rear garden.

First Floor

Landing

Doors to all bedrooms and bathroom. Doors to the storage cupboard. Access to the attic.

Primary Bedroom

3.46m x 2.85m (11' 4" x 9' 4") UPVC double glazed window to the front and radiator. Door to the en suite.

En Suite

3 piece suite in white comprising WC, pedestal sink unit and shower cubicle. Heated towel rail and extractor fan.

Bedroom 2

3.08m x 2.74m (10' 1" x 9' 0") UPVC double glazed window to the front and radiator.

Bedroom 3

3.24m x 2.59m (10' 8" x 8' 6") UPVC double glazed bay window to the side and radiator.

Bathroom

3 piece suite in white comprising WC, pedestal sink unit and bath with shower over. Extractor fan. Obscured uPVC double glazed window to the front.

Outside

To the front of the property a driveway provides off road parking leading to the single garage.

  • The Tissington
  • 980 Square Feet
  • Brand New Detached Home
  • 3 Bedrooms
  • Open Plan Dining Kitchen
  • Lounge
  • Downstairs WC
  • En Suite & Family Bathroom
  • Driveway & Garage
  • 10 Year Warranty
  • Energy Efficient Homes with Air Source Heat Pump
Floorplan for Nuthall, Nottingham
Similar Properties

Get a FREE valuation

Find out how much your property is worth