Nuthall, Nottingham

For Sale
£354,995

3 2 1

Introducing the Repton, a charming three-bedroom home brimming with character and designed for practical living. The property welcomes you with an entrance hall leading into a spacious lounge. From there, you seamlessly transition into the kitchen/dining room, where double doors open onto the garden, flooding the space with natural light. The ground floor also features a cleverly designed separate utility room and WC, for added convenience. Upstairs, discover three double bedrooms and a family bathroom, with the primary bedroom boasting a sizable ensuite featuring a large shower cubicle. Completing this delightful home is an integral garage, adding further practicality and storage options. To book your viewing call our Kimberley office! 0115 938 5577 (Option 1) 

Ground Floor

Entrance Hall

Door to lounge and stairs to first floor.

Lounge

4.76m x 3.36m (15' 7" x 11' 0") UPVC double glazed window to the front, radiator and door to the dining kitchen.

Dining Kitchen

4.36m x 3.99m (14' 4" x 13' 1") A range of matching wall & base units, work surfaces incorporating an inset sink & drainer unit. Integrated appliances. Radiator, ceiling spotlights and under stairs storage. UPVC double glazed window to the rear, French doors leading to the rear garden and door to utility room.

Utility Room

Door to rear garden and ground floor WC.

WC

WC, pedestal sink, radiator and obscured uPVC double glazed window to the rear.

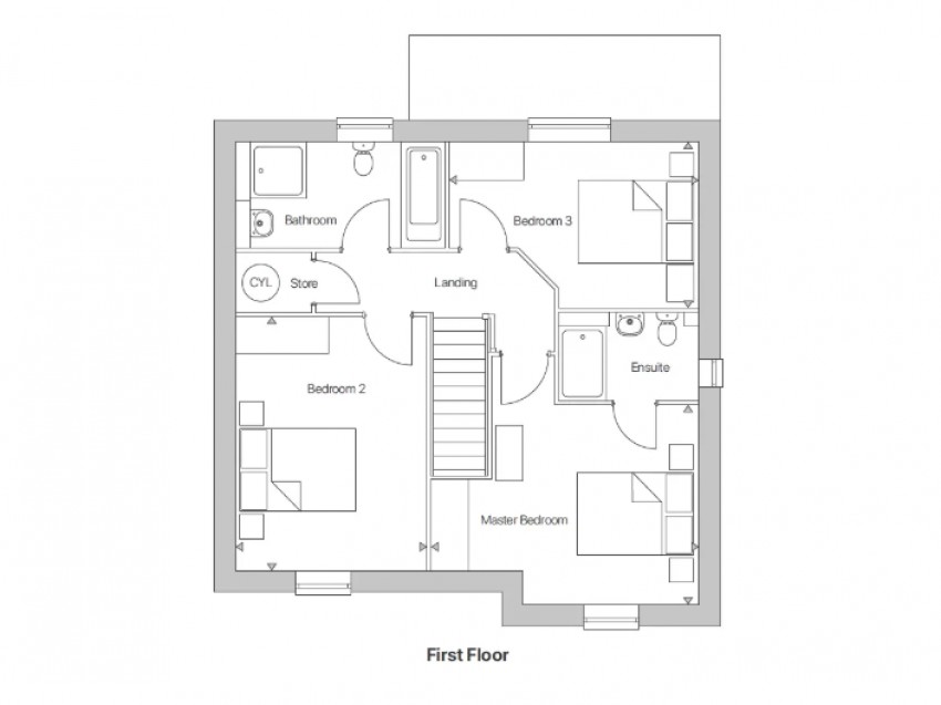
First Floor

First Floor Landing

Doors to all bedrooms & bathroom and storage cupboard.

Primary Bedroom

4.36m x 3.99m (14' 4" x 13' 1") UPVC double glazed window to the front, radiator and door to ensuite.

En Suite

3 piece suite in white comprising WC, pedestal sink unit and shower cubicle. Extractor fan, heated towel rail and obscured uPVC double glazed window to the side.

Bedroom 2

4.13m x 3.10m (13' 7" x 10' 2") UPVC double glazed window to the front and radiator.

Bedroom 3

4.05m x 2.69m (13' 3" x 8' 10") UPVC double glazed window to the rear and radiator.

Bathroom

4 piece suite in white comprising WC, pedestal sink, bath and cubicle shower. Heated towel rail, extractor fan and obscured uPVC double glazed window to the rear.

Outside

To the front of the property is a turfed lawn. A driveway provides ample off road parking leading to the integral garage with up & over door and power. The rear garden comprises a paved patio seating area, turfed lawn and is enclosed by timber fencing to the perimeter with gated access to the side.

  • The Repton
  • 1070 SQ FT
  • Brand New Detached Home
  • Three Bathrooms
  • Open Plan Dining Kitchen
  • Lounge
  • Downstairs WC
  • En Suite Shower Room
  • 10 Year Warranty
  • Energy Efficient Homes with Air Source Heat Pump
  • Driveway & Garage
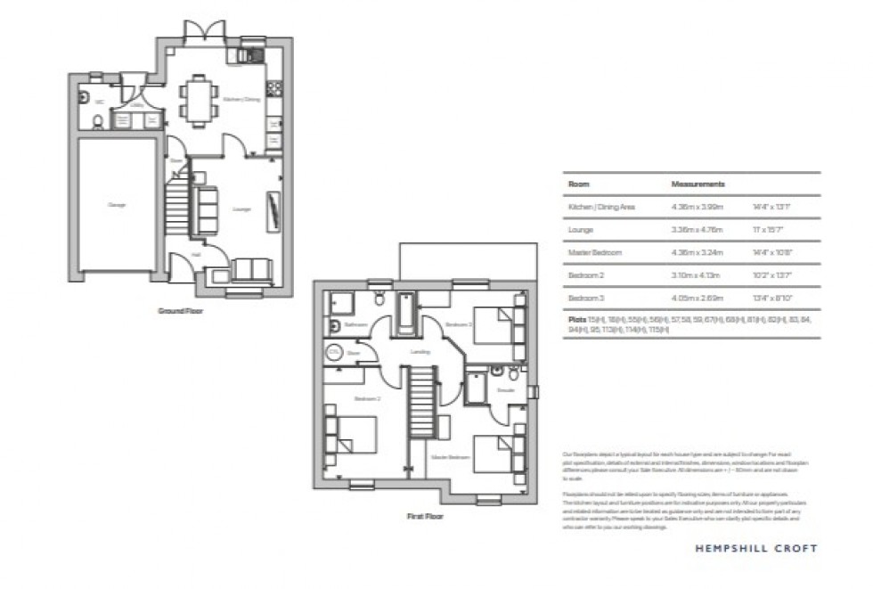
Floorplan for Nuthall, Nottingham
Similar Properties

Get a FREE valuation

Find out how much your property is worth