Nuthall, Nottingham

For Sale
£339,995

3 2 1

Welcome to The Tissington, an exceptional brand new detached home located in the charming village of Nuthall. This beautifully designed 3-bedroom property offers a perfect blend of modern living and comfort, providing 980 square feet of stylish and practical living space for you and your family to enjoy. With energy-efficient features and a 10-year warranty, this house is not only a smart investment but also a sustainable and comfortable place to call home. Step inside to discover a spacious and welcoming lounge, ideal for relaxing evenings or social gatherings with friends and family. The open-plan dining kitchen is the heart of the home, thoughtfully designed to combine functionality with contemporary aesthetics. Ample natural light floods the space, creating a bright and inviting environment perfect for cooking, dining, and entertaining. With integrated appliances and generous worktop space, this kitchen is sure to inspire your inner chef. Downstairs, you'll find a convenient WC, adding to the practical layout of the property. Upstairs, the master bedroom boasts its own en suite bathroom, offering a private retreat where you can unwind and refresh. Two additional well-proportioned bedrooms provide flexible accommodation for children, guests, or even a home office. The family bathroom serves these rooms, complete with modern fittings and a clean, sleek design. The energy efficiency of The Tissington is enhanced by an air source heat pump, which not only reduces your carbon footprint but also keeps energy bills manageable. This eco-friendly system ensures your home remains warm and comfortable throughout the year. Additionally, the property benefits from a driveway, providing convenient off-street parking for you and your guests. Located in the peaceful yet accessible community of Nuthall, this home offers the perfect balance of tranquility and convenience. Local amenities, schools, and transport links are all within easy reach, making it an ideal choice for families and professionals alike. With its modern design, excellent features, and guaranteed build quality, The Tissington is ready to welcome you home. Don't miss out on this fantastic opportunity to own a stunning new detached house in one of Nuthall’s most desirable locations. Contact us today to arrange a viewing and experience firsthand the comfort and style this property has to offer. Make The Tissington your new address and enjoy a beautiful home built for the future.

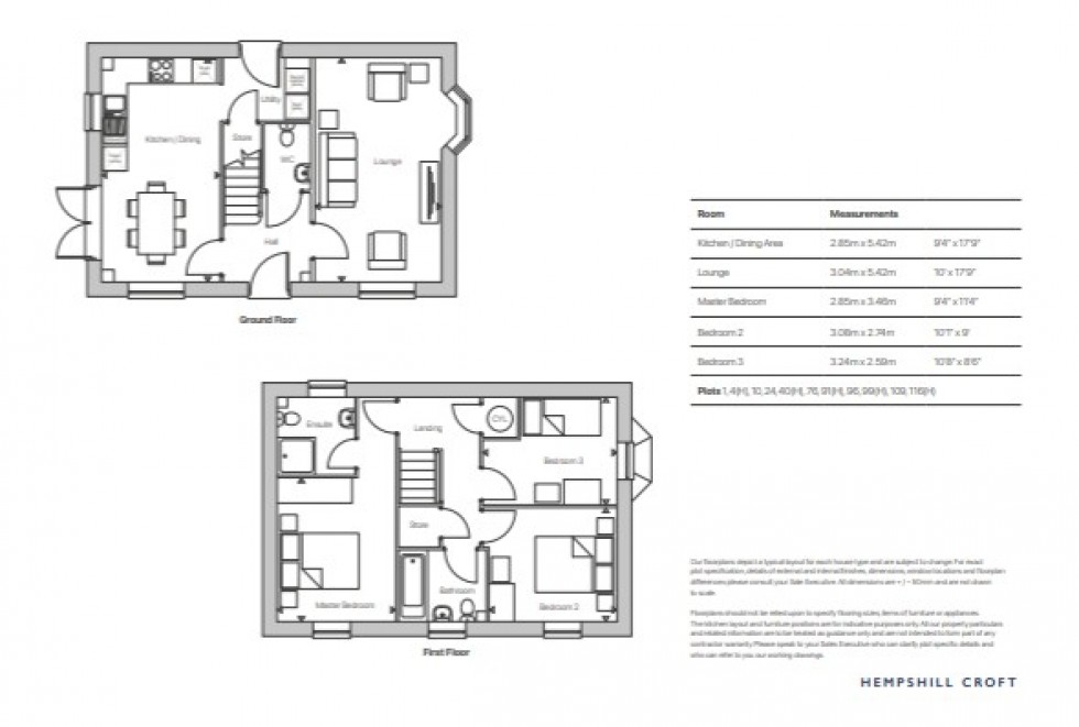
Ground Floor

Storm Porch

Composite door to the entrance hall.

Entrance Hall

Stairs to the first and doors to the lounge, dining kitchen and WC.

WC

WC, pedestal sink unit and obscured uPVC double glazed window to the side.

Lounge

5.42m x 3.04m (17' 9" x 10' 0") UPVC double glazed window to the front, uPVC double glazed bay window to the side and radiator.

Dining Kitchen

5.42m x 2.85m (17' 9" x 9' 4") A range of matching wall & base units, work surfaces incorporating an inset sink & drainer unit. Integrated appliances. UPVC double glazed window to the front and French doors to the rear garden.

First Floor

Landing

Doors to all bedrooms and bathroom. Doors to the storage cupboard. Access to the attic.

Primary Bedroom

3.46m x 2.85m (11' 4" x 9' 4") UPVC double glazed window to the front and radiator. Door to the en suite.

En Suite

3 piece suite in white comprising WC, pedestal sink unit and shower cubicle. Heated towel rail and extractor fan.

Bedroom 2

3.08m x 2.74m (10' 1" x 9' 0") UPVC double glazed window to the front and radiator.

Bedroom 3

3.24m x 2.59m (10' 8" x 8' 6") UPVC double glazed bay window to the side and radiator.

Bathroom

3 piece suite in white comprising WC, pedestal sink unit and bath with shower over. Extractor fan. Obscured uPVC double glazed window to the front.

Outside

To the front of the property a driveway provides off road parking.

  • The Tissington
  • 980 Square Feet
  • Brand New Detached Home
  • 3 Bedrooms
  • Open Plan Dining Kitchen
  • Lounge
  • Downstairs WC
  • En Suite & Family Bathroom
  • Driveway
  • 10 Year Warranty
  • Energy Efficient Homes with Air Source Heat Pump
Floorplan for Nuthall, Nottingham
Similar Properties

Get a FREE valuation

Find out how much your property is worth