Nuthall, Nottingham

Under Offer
£279,995

3 2 1

The Worthington is a modern three-bedroom home which features an open-plan lounge and dining space, complete with French doors to the rear garden. A front-facing kitchen, downstairs WC and ample storage space complete the ground floor. Upstairs, you’ll find three well-proportioned bedrooms, bedrooms two and three share a sizable family bathroom whilst the primary bedroom benefits from its own en-suite with separate shower providing comfort and convenience for the entire family. Outside a driveway provides off road parking. Call our Kimberley Team to book a viewing 01159385577 Option 1.

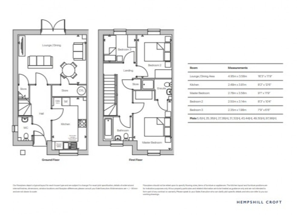
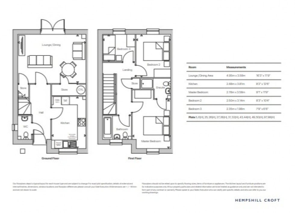
Ground Floor

Entrance Hall

Entrance door to the front and doors to the lounge diner, kitchen and WC. Stairs to the first floor.

WC

WC, pedestal sink unit and obscured uPVC double glazed window to the side.

Lounge Diner

4.95m x 3.58m (16' 3" x 11' 9") French doors to the rear garden, radiator and door to the storage cupboard housing the hot water tank and door to the understairs storage cupboard.

Kitchen

3.81m x 2.48m (12' 6" x 8' 2") A range of matching wall & base units, work surfaces incorporating an inset sink & drainer unit. Integrated appliances. UPVC double glazed window to the front.

First Floor

Landing

Doors to all bedrooms and bathroom. Access to the attic.

Primary Bedroom

3.58m x 2.35m (11' 9" x 7' 9") UPVC double glazed window to the front and door to the en suite.

En Suite

3 piece suite in white comprising WC, pedestal sink unit and shower cubicle. Extractor fan.

Bedroom 2

3.14m x 2.5m (10' 4" x 8' 2") UPVC double glazed window to the rear.

Bedroom 3

2.37m x 1.98m (7' 9" x 6' 6") UPVC double glazed window to the rear.

Bathroom

3 piece suite in white comprising WC, pedestal sink unit and bath with shower over. Extractor fan.

Outside

To the front of the property is a turfed lawn. A driveway provides off road parking. The rear garden comprises a paved patio seating area and turfed lawn. The garden is enclosed by timber fencing to the perimeter with gated access to the side.

  • The Worthington
  • 873 Square Feet
  • Brand New Semi Detached Home
  • 3 Bedrooms
  • Open Plan Lounge & Dining Room
  • Front Facing Fitted Kitchen
  • En Suite & Family Bathroom
  • Downstairs WC
  • Off Road Parking
  • 10 Year Warranty
  • Energy Efficient Homes with Air Source Heat Pump
Floorplan for Nuthall, Nottingham
Similar Properties

Get a FREE valuation

Find out how much your property is worth