Eastwood, Nottingham

For Sale
Guide Price £500,000

6 5 4

*** GUIDE PRICE £500,000 - £550,000 *** SPACE, SPACE AND MORE SPACE! *** NO CHAIN *** If space is what you are looking for then look no further than this impressive 5/6 bedroom detached home that provides so much flexibility and space and can be utilised for a wide variety of uses and purposes! Located only a short distance from Eastwood town centre the property boasts generous rooms and comprises, entrance hallway, fitted kitchen/dining room, living room, study, dining/sitting area and a WC on the ground floor. To the first floor there are 4 bedrooms with 2 shower rooms, 1 en-suite and a bathroom and to the second floor 2 further double bedrooms with a dressing room. Set on a generous plot with ample private parking accessed via an electric door from the road and behind a high perimeter wall there is a large outbuilding and a separate Annex/Home office that could be converted to use as home business, workshop space or even potential to build another property (subject to necessary planning permissions). A very unique home with a huge amount of possibilities this property must be seen to be fully appreciated! Call our sales team today to book your viewing!

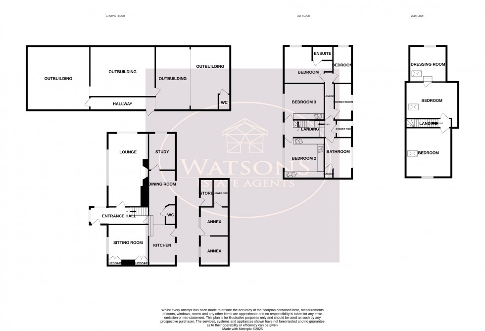
Ground Floor

Entrance Hall

UPVC entrance door, uPVC double glazed windows to the side and rear, radiator, stairs to first floor and door to lounge and dining room.

Lounge

7.00m x 3.69m (23' 0" x 12' 1") UPVC double glazed windows to the rear and side, inglenook fireplace with multifuel burner and radiator.

Dining Room

5.07m x 2.55m (16' 8" x 8' 4") UPVC double glazed window to the side, radiator, tiled flooring, open access to the kitchen, door to study, door to ground floor WC.

WC

WC, pedestal sink and tiled flooring.

Dining Kitchen

6.64m x 3.62m (21' 9" x 11' 11") Multi level dining kitchen with a range of matching wall and base units, with granite worksurfaces incorporating an inset 1.5 stainless steel sink & drainer unit. Integrated appliances including a range cooker with extractor over, fridge freezer and dishwasher. Two uPVC double glazed windows to the side, tiled flooring, and raised access to the seating area.

Study

3.31m x 2.29m (10' 10" x 7' 6") UPVC double glazed window to the rear and radiator.

First Floor

First Floor Landing

Stairs to second floor, doors to four bedroom and two shower rooms.

Bedroom 1

4.18m x 3.32m (13' 9" x 10' 11") UPVC double glazed window to the rear, radiator and door to ensuite.

Ensuite

White three piece suite comprising wc, pedestal sink and mains fed cubicle shower. Obscured uPVC double glazed window to the rear, tiled flooring and partially tiled walls.

Bedroom 2

3.70m x 3.05m (12' 2" x 10' 0") UPVC double glazed window to the side, fitted wardrobes and radiator.

Bedroom 3

3.64m x 3.31m (11' 11" x 10' 10") UPVC double glazed window to the side, fitted wardrobe and radiator.

Bedroom 5

3.35m x 1.96m (11' 0" x 6' 5") UPVC double glazed window to the rear and radiator.

Bathroom

White three piece suite comprising wc, pedestal sink and mains fed cubicle shower. Obscured uPVC double glazed window to the side, chrome heated towel rail, extractor fan, airing cupboard housing combination boiler, tiled flooring and partially tiled walls.

Shower Room 1

White three piece suite comprising wc, pedestal sink and electric fed cubicle shower. Obscured uPVC double glazed window to the side, chrome heated towel rail and extractor fan.

Shower Room 2

White three piece suite comprising wc, pedestal sink and electric fed cubicle shower. Obscured uPVC double glazed window to the side, chrome heated towel rail and extractor fan.

Second Floor

Second Floor Landing

Doors to two bedrooms.

Bedroom 4

4.64m x 4.48m (15' 3" x 14' 8") UPVC double glazed window to the front, Velux window and radiator.

Bedroom 6

4.27m x 3.40m (14' 0" x 11' 2") Velux window, radiator and door to the dressing room.

Dressing Room

3.35m x 3.42m (11' 0" x 11' 3") UPVC double glazed window to the rear, Velux window and radiator.

Annex

Room 1

2.79m x 2.55m (9' 2" x 8' 4") UPVC double glazed window to the side and open access to room 2.

Room 2

2.72m x 2.71m (8' 11" x 8' 11") UPVC double glazed window to the side.

Shower Room

White three piece suite comprising wc, wall mounted sink and cubicle shower.

Storage

Door to storage room.

Outbuildings

Hallway

Timber entrance door, two windows to the front and door to outbuilding 1.

Outbuilding 1

6.00m x 5.90m (19' 8" x 19' 4")

Outbuilding 2

6.11m x 4.73m (20' 1" x 15' 6")

Outbuildings 3

6.00m x 3.27m (19' 8" x 10' 9")

Outbuilding 4

6.00m x 3.74m (19' 8" x 12' 3") Door to WC.

WC

1.51m x 1.11m (4' 11" x 3' 8")

Outside

To the front of the property is timber gate access to the entrance door, as well as an electric gate. Giving access to a tarmacadam driveway leading to the outbuildings and annex, as well as the entrance door. The garden features a raised turfed lawn with well established trees and shrubbery palisaded by brick walls, as well as a second turfed lawn area with well established hedged borders.

*** AGENT NOTE ***

AGENT NOTE: The seller has provided us with the following information: The gas boiler is located in the airing cupboard in the bedroom.

  • Substantial Detached Property
  • Three Storey Accommodation
  • Six Good Size Bedrooms
  • Four Spacious Reception Rooms & Dressing Rooms
  • Modern Open Plan Dining Kitchen
  • Ground Floor WC & Ensuite To Primary Bedroom
  • Two Shower Rooms & Bathroom
  • Separate Annex With Shower Room
  • Four Outbuildings With WC
  • No Upward Chain
  • Great Road Links & Close to Amenities (M1)
Floorplan for Eastwood, Nottingham
EPC Graph for Eastwood, Nottingham

Get a FREE valuation

Find out how much your property is worth