Brinsley, Nottingham

For Sale
Offers Over £170,000

3 1 2

*** INTRODUCING 'CLINTON VILLAS' *** Built in 1903, this character property in Brinsley offers great space inside & out. Coming to the market with NO UPWARD CHAIN, it would ideally suit first time buyers, down-sizers or investors. The accommodation is very live-able and comprises in brief: lounge, inner hallway, bathroom, dining room & kitchen to the ground floor, with 2 DOUBLE bedrooms to the first floor and a further double bedroom on the 2nd floor. To the front of the  property there is space for a small car and there is a good size garden to the rear which could be adapted to personal taste. The desirable village of Brinsley gives easy access to all the shops & amenities of the nearby town of Eastwood whilst having beautiful countryside on the doorstep. Call us now on 01159385577 (option 2) to arrange a viewing.

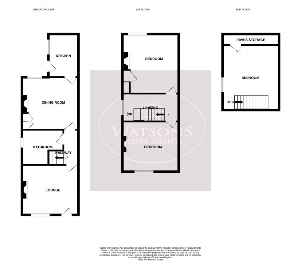
Ground Floor

Lounge

3.72m x 3.42m (12' 2" x 11' 3") UPVC entrance door, uPVC double glazed window to the front, radiator, original/ traditional feature fireplace with space for fire and door to hallway.

Hall

Stairs to first floor, door to dining room, bathroom and lounge.

Bathroom

White three piece suite comprising wc, pedestal sink and panel bath with mains fed shower over. Obscured uPVC double glazed window to the side, tiled walls and radiator.

Dining Room

3.82m x 3.74m (12' 6" x 12' 3") UPVC double glazed window to the rear, feature fireplace, storage cupboard, radiator and door to kitchen.

Kitchen

3.52m x 2.14m (11' 7" x 7' 0") A range of wall and base units with work surfaces incorporating a sink & drainer unit. Integrated appliances including electric oven, electric hob, fridge freezer and space for washing machine. UPVC double glazed window to the side, tiled floors and partially tiled walls and radiator.

First Floor

First Floor Landing

Stairs to second floor, uPVC double glazed window to the side, and doors to two bedrooms.

Bedroom 1

3.87m x 3.77m (12' 8" x 12' 4") UPVC double glazed window to the rear, laminate wood flooring, original / traditional feature fireplace, radiator and storage cupboard housing wall mounted combination boiler.

Bedroom 2

3.75m x 3.44m (12' 4" x 11' 3") UPVC double glazed window to the front, radiator and original / traditional feature fireplace and radiator.

Second Floor

Bedroom 3

3.78m x 3.50m (12' 5" x 11' 6") UPVC double glazed window to the side, radiator and eaves storage.

Outside

To the front of the property is a raised hardstanding driveway, with a second pathway leading down the side of the property giving access to the rear garden. The ample rear garden features a paved seating area, garden area with well established trees, plants and shrubbery, with a path leading to a brick outhouse and a second garden area with a range of plants and shrubbery, green house and vegetable patch , palisaded by a mixture of timber fencing and well established hedges.

*** AGENT NOTE ***

AGENT NOTE: The seller has provided us with the following information; the gas boiler is located in the back bedroom, it is four years old and was last serviced in September 2025. The third bedroom on the second floor isn't a conversion.

  • Semi Detached Three Storey Home
  • Two Double Bedroom To The First Floor
  • One Double Bedroom To The Second Floor
  • Two Spacious Reception Rooms
  • Fitted Kitchen
  • Ground Floor Three Piece Bathroom Suite
  • Large Enclosed Rear Garden & Outbuilding
  • Off Road Parking
  • No Upward Chain
  • Great Road Links & Close to Amenities
Floorplan for Brinsley, Nottingham
EPC Graph for Brinsley, Nottingham
Similar Properties

Get a FREE valuation

Find out how much your property is worth