Underwood, Nottingham

Under Offer
£300,000

1

*** DEVELOPMENT OPPORTUNITY *** This sizeable detached building in Underwood is currently used as commercial office space totalling 2090 square feet (194.16 square metres) over 2 floors, with the added benefit of good parking provision and full utilities including kitchen and multiple WCs. We also advise inspection of the neighbouring property which can be acquired alongside this one for ease of planning, giving the potential to convert into residential (STPP). Please call us on 01159385577 (option 2) for more information.

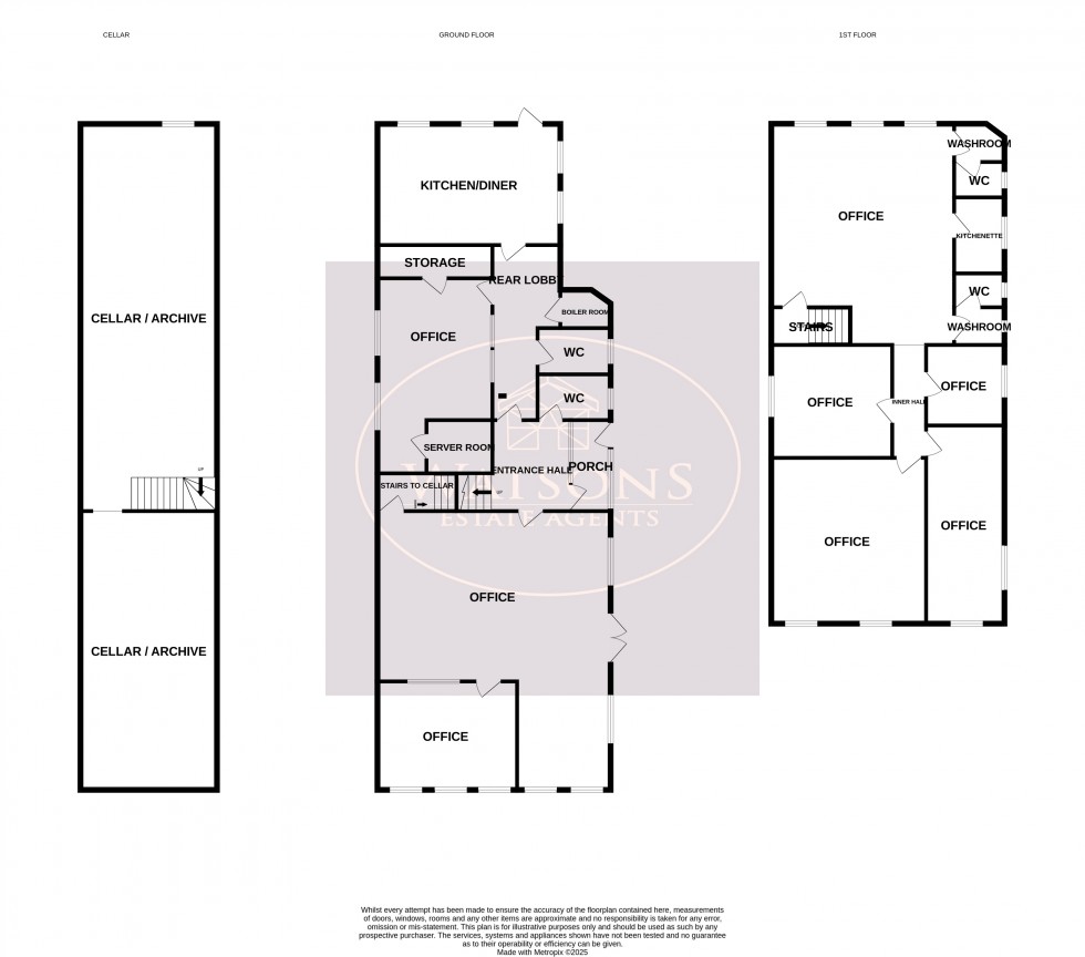
Ground Floor

Entrance Hall /Porch

Office

4.38m x 3.37m (14' 4" x 11' 1")

Office

8.66m x 7.25m (28' 5" x 23' 9")

WC

2.27m x 1.42m (7' 5" x 4' 8")

WC

2.27m x 1.44m (7' 5" x 4' 9")

Rear Lobby

Boiler Room

1.56m x 1.19m (5' 1" x 3' 11")

Office

6.06m x 3.57m (19' 11" x 11' 9")

Server Room

205m x 1.65m (672' 7" x 5' 5")

Storage

Kitchen/Diner

5.68m x 3.76m (18' 8" x 12' 4")

First Floor

Office

6.88m x 5.68m (22' 7" x 18' 8")

Washroom

1.56m x 1.19m (5' 1" x 3' 11")

WC

1.56m x 1.10m (5' 1" x 3' 7")

Kitchenette

2.36m x 1.56m (7' 9" x 5' 1")

WC

1.56m x 1.05m (5' 1" x 3' 5")

Washroom

1.56m x 1.17m (5' 1" x 3' 10")

Inner Hall

Office

3.76m x 3.51m (12' 4" x 11' 6")

Office

2.50m x 2.44m (8' 2" x 8' 0")

Office

5.15m x 4.81m (16' 11" x 15' 9")

Office

6.16m x 2.44m (20' 3" x 8' 0")

Cellar

Cellar/Archive

12.03m x 4.25m (39' 6" x 13' 11")

Cellar/Archive

8.66m x 4.25m (28' 5" x 13' 11")

  • Commercial Office Space
  • 2090 square feet over 2 floors
  • Full Utilities Including Kitchen
  • 2 WCs On Each Floor
  • Potential For Residential Conversion
  • Viewing Of Neighbouring Property Advised
Floorplan for Underwood, Nottingham
EPC Graph for Underwood, Nottingham

Get a FREE valuation

Find out how much your property is worth